白山市末広で新商品「Select-セレクト-」の分譲モデルがOPEN!!コスパを重視しつつも性能はトップクラスのひまわり標準仕様を維持しています。特別価格で販売もおこないますので注目です。

POINT 1
業界トップレベルの性能と使いやすいデザイン。
- 長期優良住宅認定取得
- 性能表示評価書①設計②建設取得
- 耐震等級=最高等級3取得
- 断熱等級=6取得
POINT 2
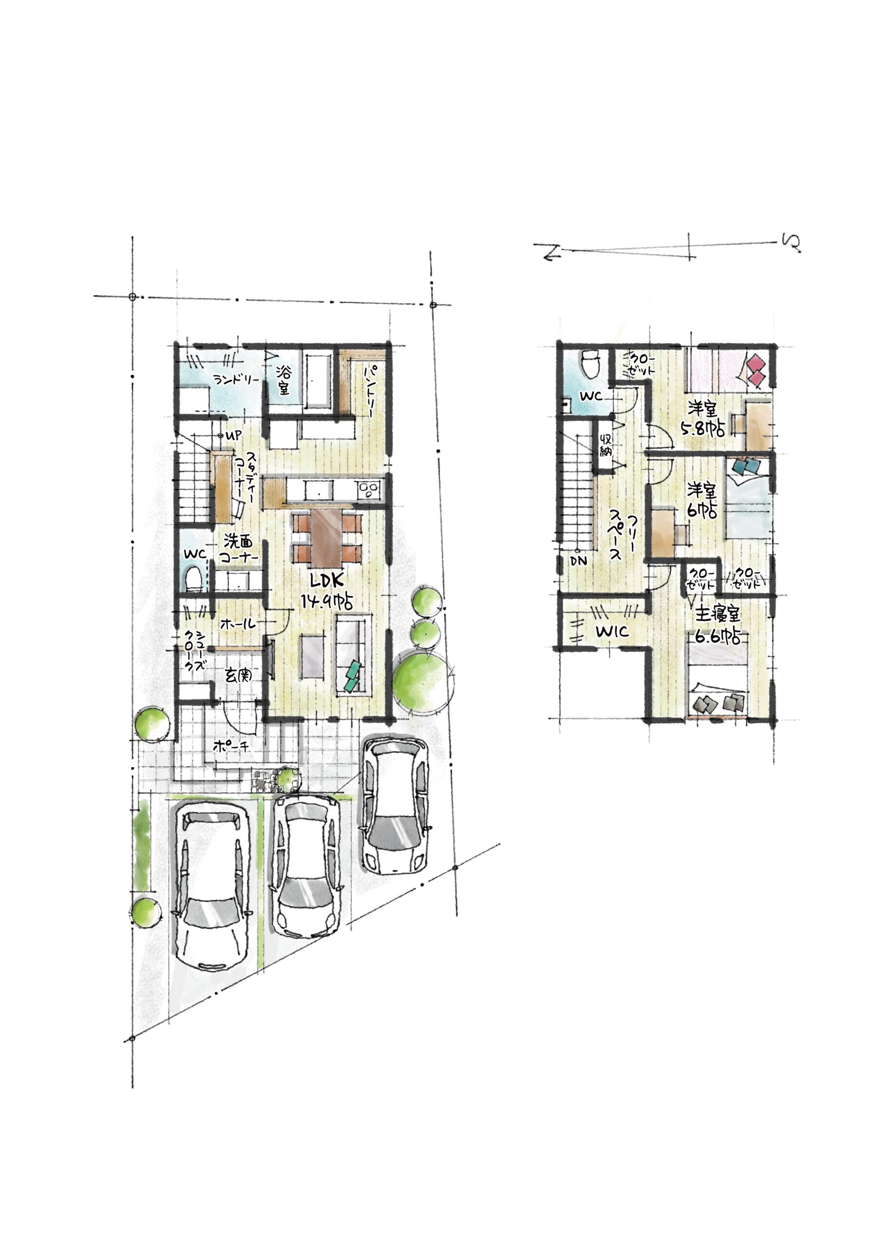
プランは平屋も含め200種以上。
- Sprium(2F建て)=120種類以上のプラン
- ES flat=80種類以上のプラン
POINT 3
自分の生活にあったプランをセレクトできる。
- 金沢の4月の平均気温は12.5℃、東京は13.9℃です。
断熱基準のHEAT20でG3は最低室温15℃以上、G2で13℃とひまわりほーむの断熱性能なら1年を通して春の空間に。
デザインだけを考えて性能が低い(寒い)と後悔しないために・・・
松任小学校まで50m / 松任中学校まで350m
国道8号線、海側環状線までのアクセス良好の立地です!!
長期優良住宅
ひまわりほーむの建物は全棟長期優良住宅・性能表示住宅です。永く安心して快適に暮らせる家として平成21年(2009年)にスタートした『長期優良住宅認定制度』の基準をクリアした家です。
- 耐震性
- 省エネルギー性
- 居住環境
- 維持管理
- 更新の容易性
- 劣化対策
- 住戸面積
の7項目に渡る基準。
そして何より嬉しいことは住宅ローン控除枠が最大の5,000万円となり、その他にも登録免許税や不動産取得税、固定資産税もお得になります。2024年住宅省エネキャンペーンとして『子育てエコホーム支援事業』で国から100万円の補助金もあります。
いろいろとメリットが多い建物です。
性能表示住宅
建物の品質について専門家である第三者機関が一定の基準に沿って設計時に1回、建設時に4回の計5回に渡り厳正に評価、チェックを行います。その結果を消費者に分かりやすく「等級」で表示します。簡単に言うと家の通知表のようなものです。

















